fbpx
Obszary działalności

Koszary wojskowe modułowe

Budujemy dla służb mundurowych, instytucji wojskowych i sił zbrojnych

Koszary wojskowe modułowe

Konsekwencją współczesnych wyzwań w sferze bezpieczeństwa narodowego jest potrzeba rozległej i szybkiej rozbudowy infrastruktury wojskowej. To duże wyzwanie – istotne są nie tylko koszty, ale również czas realizacji inwestycji i zachowanie najwyższych standardów. Rozwiązaniem tych problemów mogą być modułowe budynki dla wojska. W czym przejawia się przewaga technologii modułowej w kontekście potrzeb związanych z modernizacją i rozbudową sił zbrojnych?

Modułowe budynki wojskowe – czym się wyróżniają?

Budynki wojskowe muszą spełniać określone w przepisach normy i standardy. Modułowe budynki wojskowe Unihouse w pełni odpowiadają współczesnym wymogom. Mimo że do ich budowy wykorzystywane jest m.in. drewno, to na etapie produkcji poszczególnych modułów ich szkielet zostaje odpowiednio zabezpieczony przed różnymi czynnikami, w tym ogniem. W konsekwencji budynki są trwałe i posiadają niezbędną ochronę przeciwpożarową. Z perspektywy wojska kwestie bezpieczeństwa są kluczowe, jednak za wyborem modułowych obiektów wojskowych Unihouse przemawia również szereg innych argumentów.

Koszary modułowe oferowane przez Unihouse są w pełni wykończone. W praktyce oznacza to, że moduły, które zostają przywiezione na plac budowy, posiadają wszystkie niezbędne instalacje oraz są wyposażone zgodnie z zatwierdzonym przez inwestora projektem. Modułowe budynki wojskowe można zatem zacząć użytkować natychmiast po połączeniu poszczególnych modułów. Dla wojska czas ma duże znaczenie – budownictwo modułowe odpowiada na tę szczególną potrzebę.

Modułowe obiekty wojskowe – pozostałe zalety:

  • niskie koszty eksploatacji – budownictwo modułowe wykorzystuje energooszczędne technologie, dzięki czemu koszty m.in. ogrzewania są niskie;
  • możliwość łatwej rozbudowy – koszary modułowe mogą zostać rozbudowane, a czas potrzebny na dostawienie dodatkowych pomieszczeń jest krótki;
  • możliwość transportu – lekkie moduły mogą zostać przetransportowane w dowolne miejsce, co z perspektywy wojska jest kluczową cechą;
  • wyższy standard użytkowy w porównaniu z rozwiązaniami kontenerowymi (komfort, izolacyjność, parametry energetyczne)
Modułowe koszary wojskowe

Zaplecze produkcyjne dla strategicznych projektów

Nasza fabryka modułów realizuje rocznie do 2000 jednostek, co odpowiada ok. 45 000 m² powierzchni użytkowej. Skala ta pozwala na budowę nawet 18 kompleksów koszarowych dla ok. 170 osób każdy, a także obiektów o innym przeznaczeniu – np. 45 żłobków, 30 przedszkoli lub 800 mieszkań o średniej powierzchni 55 m².

Unibep SA to spółka akcyjna o większościowym polskim kapitale, notowana od 2008 roku na Giełdzie Papierów Wartościowych w Warszawie. Należy do grona największych generalnych wykonawców w Polsce, a jej historia sięga 1950 roku. Jesteśmy godnym zaufania partnerem biznesowym, działającym na rynku od 75 lat. Posiadamy wiedzę i doświadczenie w prowadzeniu różnorodnych projektów budowlanych oraz odpowiednie zasoby kadrowe, by realizować także ambitne projekty wojskowe i inwestycje dla innych służb mundurowych.

Zalety modułowych rozwiązań dla infrastruktury wojskowej i służb mundurowych.

Muzyka https://www.fiftysounds.com

Modułowe koszary wojskowe kontakt
UNIHOUSE SA

ul. Rejonowa 5,
17-100 Bielsk Podlaski

(+48) 85 730 34 77
info@unihouse.pl

Administratorem Twoich danych osobowych jest firma UNIHOUSE S.A., ul. Rejonowa 5, 17-100 Bielsk Podlaski.

> 20 LAT

doświadczenia branżowego

4876

wybudowanych mieszkań

24H/7

doradztwo i wsparcie działu handlowego

Czas realizacji modułowych koszar wojskowych

Szybki czas realizacji inwestycji modułowego budynku dla wojska

Szkolenia, ćwiczenia czy konieczność wsparcia lokalnych służb w sytuacji kryzysowej – modułowe budynki dla wojska mogą powstać w zaledwie kilka miesięcy i następnie być wielokrotnie transportowane w różne lokalizacje. Szybkie tempo realizacji zamówień to kolejny powód, dla którego technologia szkieletowa w systemie modułowym odpowiada specyficznym potrzebom wojska. Jednocześnie stworzone z modułów Unihouse modułowe budynki wojskowe pełnią różne funkcje, np. sal szkoleniowych czy pomieszczeń noclegowych (koszary modułowe).

Modułowe obiekty wojskowe mogą być produkowane na dużą skalę – potencjał produkcyjny Unihouse wynosi 2000 modułów rocznie. Istnieje możliwość zarówno standaryzacji modułów, jak i wytwarzania ich zgodnie z indywidualnym projektem. W każdym przypadku gotowy obiekt modułowy w pełni odpowiada na potrzeby inwestora. Okres eksploatacji budynków może przekroczyć 50 lat – pod tym względem technologia modułowa nie ustępuje tradycyjnemu budownictwu.

Przykładowy modułowy kompleks wojskowy

Kompleks wojskowy Unihouse to przykład efektywnego wykorzystania technologii budownictwa modułowego w infrastrukturze obronnej. Obiekt został zaprojektowany z myślą o funkcjonalności, mobilności i komforcie użytkowników. Modułowa konstrukcja pozwala na szybki montaż, relokację lub rozbudowę w zależności od potrzeb operacyjnych.
Zabudowa spełnia wszystkie wymogi wojskowe w zakresie bezpieczeństwa, ergonomii i organizacji zaplecza socjalnego.


W skład przykładowego kompleksu wchodzą m.in.:

• moduły noclegowe dla 200 żołnierzy i kadry dowódczej,
• kuchnia polowa z kantyną i zapleczem magazynowym,

• wartownie, magazyny uzbrojenia, ambulatorium i pomieszczenia izolacyjne,

• infrastruktura wodno-kanalizacyjna z własną stacją uzdatniania wody i studnią,

• zbiornik paliwowy oraz generator prądotwórczy zapewniający niezależność energetyczną,

• plac manewrowy i parking dla pojazdów wojskowych.

typowy moduł koszar wojskowych

Techniczne aspekty modułowych budynków wojskowych

W projektach modułowych realizowanych dla sektora obronnego Unihouse szczególną uwagę przykłada do stabilności konstrukcji, jakości zastosowanych rozwiązań technicznych oraz elastyczności montażu. Poniżej zaprezentowano kluczowe elementy systemu budownictwa modułowego wykorzystywanego w inwestycjach wojskowych.

Posadowienie niezależnie od gruntu

Waga: 1 moduł 44,1 kN = 4500 kg

Różnorodność zastosowań: śruby gruntowe, bloczki betonowe, inny dowolny sposób posadowienia.

Moduł podstawowy

Wymiary: szer. 244 cm / dł. 591 cm / wys. 335 cm

  1. Przegrody o wsp. przenikania ciepła zgodnym z WT 2020: ściany U=0,20 W/m²K; dach U=0,16 W/m²K; podłoga U=0,15 W/m²K.
  2. NRO (nierozprzestrzeniające ognia).
  3. REI 30–60 min.
  4. Masa 4500 kg.

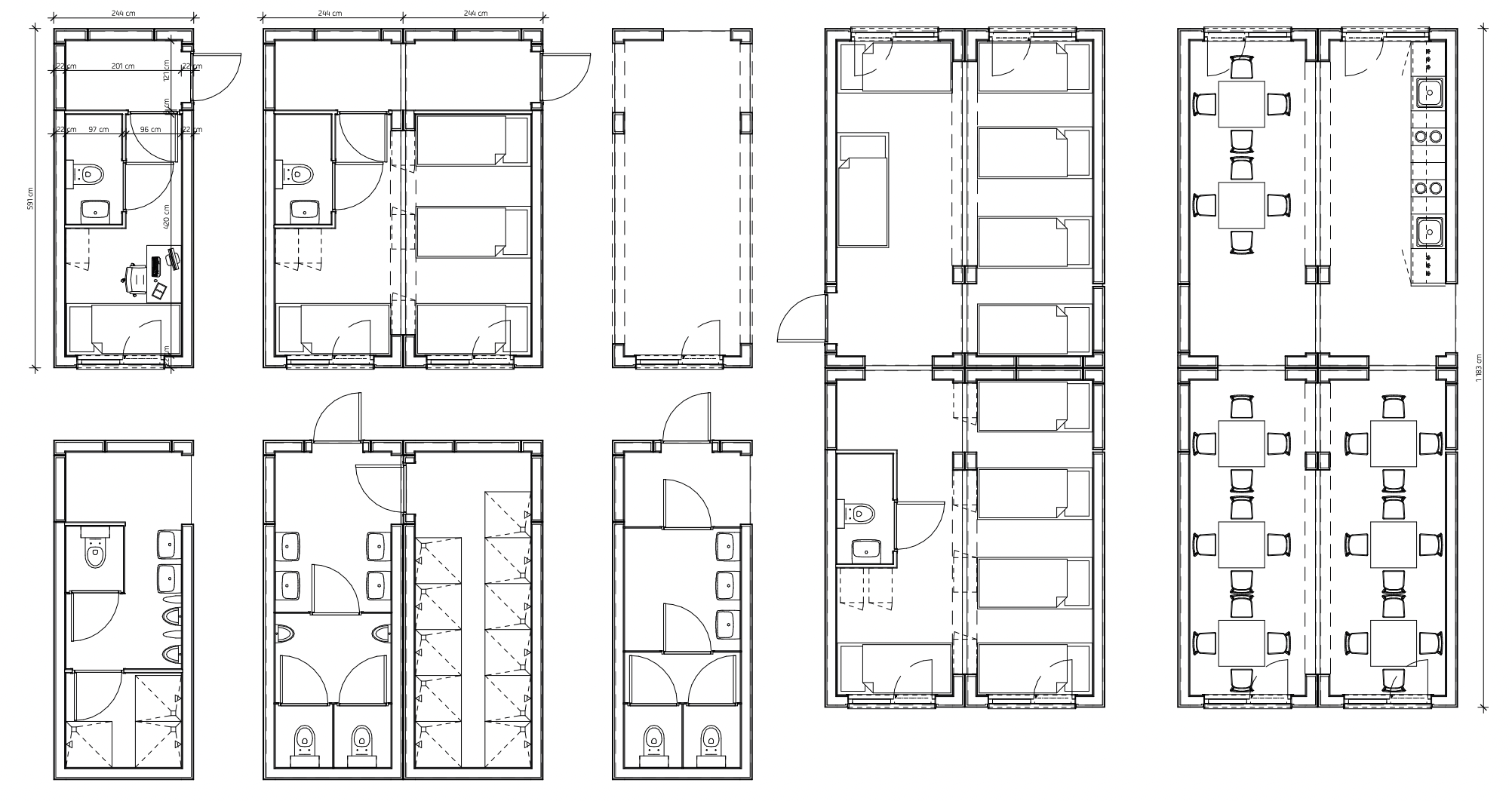
System modułowy – elastyczna konstrukcja dopasowana do potrzeb wojska

Technologia modułowa pozwala na tworzenie budynków o dowolnej konfiguracji i powierzchni użytkowej – od pojedynczych pomieszczeń po wielokondygnacyjne kompleksy koszarowe. Każdy moduł może pełnić funkcję mieszkalną, sanitarną, socjalną lub biurową, a jego wyposażenie i układ dostosowywane są do wymagań inwestora oraz charakteru misji. Przykładowe układy modułów prezentują możliwości zestawiania i aranżacji przestrzeni w budynkach wojskowych.

Moduły mogą być zestawiane w budynki i kompleksy dowolnej wielkości.

Moduły można także ustawiać na sobie tworząc budynki dwukondygnacyjne.

Wewnętrzne wyposażenie modułów może być dostosowane do potrzeb zamawiającego.

Zaufali nam przedstawiciele wojska i administracji publicznej

Mamy przyjemność stwierdzić, że firma UNIBEP SA wykonała zadanie w sposób należyty, zgodnie z zasadami sztuki budowlanej, spełniając oczekiwania Inwestora. Całość została ukończona prawidłowo, terminowo, z bardzo dobrym rezultatem końcowym. Inwestycję zrealizowano rzetelnie, profesjonalnie i z dużym zaangażowaniem wykwalifikowanej kadry inżynierskiej, w tym kierownictwa budowy. Rekomendujemy Spółkę UNIBEP SA jako rzetelnego partnera i doświadczonego Generalnego Wykonawcę, który gwarantuje dobrą jakość i terminowe wykonanie inwestycji.

Wojskowe Zakłady Elektroniczne SA

Roboty zostały wykonane z należytą starannością, zgodnie z zasadami sztuki budowlanej, z zachowaniem najwyższych standardów BHP.

Wojskowa Akademia Techniczna
Zamówienie zostało zrealizowane w terminie umownym. Roboty zostały wykonane z należytą starannością, zgodnie z przepisami prawa budowlanego i prawidłowo ukończone.
Rejonowy Zarząd Infrastruktury w Olsztynie
    zadzwoń:
    Nasi konsultanci są dostępni od pon - pt: 09.00 - 17.00
    napisz:
    Nasi doradcy skontaktują się z tobą w ciągu 48 godzin
    wyślij zapytanie:
    Nasi doradcy skontaktują się z Tobą w ciągu 48 godzin
    kompleksowe modułowe budynki dla wojska

    Kompleksowe modułowe budynki dla wojska w ofercie Unihouse!

    Modułowe obiekty wojskowe – podobnie jak posterunki policji modułowe – często muszą być podzielone na strefy, w tym niedostępne dla cywilów. Ale nie tylko ta cecha odróżnia je od innych budynków. Na terenie koszar mogą znajdować się budynki o różnym charakterze – przeznaczone do noclegu żołnierzy, ale również administracyjne, gospodarcze czy służące edukacji. Każdy modułowy obiekt wojskowy może zostać zaprojektowany z myślą o jego docelowym sposobie eksploatacji.

    Uważasz, że szybkie w budowie i oszczędne w eksploatacji modułowe koszary to odpowiedź na współczesne potrzeby wojska? Porozmawiajmy – skontaktuj się z nami i poznaj szczegóły naszej oferty.

    Budujemy dla służb mundurowych: realizacje budynków modułowych dla wojska

    • Budowa wielobranżowego magazynu wraz z infrastrukturą w Łomży
    • Budowa kompleksu budynków wraz z infrastrukturą towarzyszącą w Orzyszu na potrzeby Jednostki Wojskowej w Węgorzewie
    • Budowa lekkiego obiektu modułowego na potrzeby pododdziału DZSW w Tomaszowie Mazowieckim
    • Wykonanie robót budowlano-montażowych ośrodka szkolenia taktycznego w systemie „zaprojektuj i wybuduj” w Czarnej Białostockiej
    • Centrum Produkcyjno-Serwisowe Rakiet NSM w Zielonce
    • Radiowe Centrum Naukowo-Techniczne Wojskowej Akademii Technicznej w Warszawie
    • Centrum Innowacji i Cyberbezpieczeństwa Wojskowej Akademii Technicznej w Warszawie
    • Budowa budynku dydaktycznego WAT na potrzeby kształcenia kandydatów do zawodowej służby wojskowej – w formule „zaprojektuj i wybuduj” w Warszawie
    • Koszarowce + Stołówka (3 budynki koszarowe, 1 budynek stołówki) – na terenie Garnizonu Powidz w kompleksie wojskowym Powidz
    • Budowa obozowiska kontenerowego w systemie „zaprojektuj i wybuduj” w Wielbarku
    • Budowa budynku biurowo-garażowego wraz z infrastrukturą towarzyszącą w Białymstoku
    • Tymczasowe obozowisko kontenerowe w Suwałkach
    • Przebudowa międzynarodowego punktu kontrolnego ruchu drogowego „Szegini” na granicy ukraińsko-polskiej (obwód lwowski)

    POZOSTAŁE INWESTYCJE:

    • Zaprojektowanie i budowa infrastruktury stacjonarnej wraz z infrastrukturą towarzyszącą w woj. podlaskim. [Konsorcjum: Unibep SA (Lider), Tytan Systemy Bezpieczeństwa Sp. z o.o. (Partner) oraz ELNET Sp. z o.o. (Partner)]

    • Budowa drogi wzdłuż granicy polsko-białoruskiej

    • Budowa dwóch garaży w stanie surowym wraz z przygotowaniem infrastruktury na potrzeby czołgów LEOPARD w Warszawie

    • Budowa zabezpieczenia granicy państwowej na odcinku Podlaskiego Oddziału Straży Granicznej, polegająca na zaprojektowaniu i wybudowaniu bariery fizycznej na odcinku nr 3 Podlaskiego Oddziału Straży Granicznej

    • Infrastruktura stacjonarna w województwie podlaskim

    • Infrastruktura stacjonarna w województwie warmińsko-mazurskim

    FAQ – najczęściej zadawane pytania o budynki modułowe dla wojska

    Na czym polega projektowanie obiektów wojskowych lub innych budynków użyteczności publicznej w technologii modułowej?
    Projektowanie obiektów wojskowych w systemie modułowym łączy wymagania techniczne resortu obrony z elastycznością prefabrykacji. Każdy moduł jest opracowany z uwzględnieniem funkcji budynku, stref dostępu i bezpieczeństwa. Dzięki temu proces realizacji – od projektu po montaż –przebiega znacznie szybciej niż w budownictwie tradycyjnym.
    Jak Unihouse realizuje projektowanie budynków wojskowych?
    Unihouse zapewnia kompleksową obsługę – od koncepcji po wykonanie. Projekty są dopasowane do specyficznych wymagań uwzględniają normy wojskowe, przepisy przeciwpożarowe i standardy NATO. Modułowe budynki wojskowe mogą pełnić funkcję koszar, stołówek, punktów medycznych czy centrów dowodzenia, zachowując mobilność i pełną funkcjonalność operacyjną.
    Jakie są główne zalety modułowych obiektów dla sił zbrojnych?
    Modułowe obiekty dla wojska to elastyczne zarządzanie: można szybko montować, demontować i transportować do nowych lokalizacji. Dla sił zbrojnych oznacza to mobilność i gotowość infrastruktury w każdej sytuacji operacyjnej. Wysoki poziom prefabrykacji gwarantuje też krótszy czas realizacji i mniejsze ryzyko opóźnień.
    Czy koszary modułowe zapewniają wymagany poziom bezpieczeństwa?
    Tak. Koszary modułowe Unihouse spełniają restrykcyjne normy bezpieczeństwa i ochrony przeciwpożarowej (REI, NRO). Każdy budynek jest odporny na ogień, wyposażony w niezależne instalacje techniczne i systemy kontroli dostępu. Konstrukcje zachowują trwałość ponad 50 lat, zapewniając bezpieczeństwo użytkownikom.
    Jakie doświadczenie ma grupa Unibep SA jako generalny wykonawca inwestycji wojskowych?
    Unibep SA i Unihouse realizują inwestycje dla służb mundurowych i Ministerstwa Obrony Narodowej –m.in. kompleksy koszarowe w Powidzu, obiekty dydaktyczne WAT w Warszawie, Centrum Serwisowania Rakiet NSM w Zielonce. Jako generalny wykonawca Grupa Unibep gwarantuje zgodność z normami MON oraz pełną koordynację prac.
    Jak długo trwa realizacja budowy obiektu modułowego dla wojska?
    Czas budowy skraca się o co najmniej 50% względem tradycyjnej technologii. Produkcja modułów odbywa się równolegle z pracami fundamentowymi, dzięki czemu gotowy budynek może zostać oddany do użytku w ciągu kilku miesięcy od zawarcia umowy z inwestorem.
    Czy modułowa infrastruktura wojskowa może być dostosowana do specyficznych potrzeb jednostki?
    Tak. Każdy projekt powstaje z uwzględnieniem wymogów inwestora i charakteru jednostki wojskowej. Moduły można konfigurować dowolnie – od pomieszczeń noclegowych, przez sale szkoleniowe, po magazyny i infrastrukturę techniczną. System pozwala na łatwą rozbudowę lub relokację kompleksu.
    Czym różnią się koszary modułowe od obiektów kontenerowych?

    Koszary modułowe oferują wyższy standard użytkowy niż typowe rozwiązania kontenerowe – szczególnie w zakresie komfortu żołnierzy, izolacyjności akustycznej i termicznej oraz parametrów energetycznych. Moduły zapewniają bardziej stabilne warunki służby, lepszą trwałość konstrukcji oraz niższe koszty eksploatacji w dłuższej perspektywie. Różnice te wpływają bezpośrednio na jakość infrastruktury wojskowej i ograniczenie kosztów utrzymania jednostki.

    © 2025 UNIHOUSE SA Wszelkie prawa zastrzeżone.  | Realizacja Sensorama 

    Ustawienia plików cookies
    Do działania oraz analizy naszej strony używamy plików cookies i podobnych technologii. Pomagają nam także zrozumieć w jaki sposób korzystasz z treści i funkcji witryny. Dzięki temu możemy nadal ulepszać i personalizować korzystanie z naszego serwisu. Zapewniamy, że Twoje dane są u nas bezpieczne. Nie przekazujemy ich firmom trzecim. Potwierdzając tę wiadomość akceptujesz naszą Politykę plików cookies.
    Zaznacz wszystkie zgody
    Odrzuć wszystko
    Przeczytaj więcej
    Analityczne pliki cookies
    Te pliki cookie mają na celu w szczególności uzyskanie przez administratora serwisu wiedzy na temat statystyk dotyczących ruchu na stronie i źródła odwiedzin. Zazwyczaj zbieranie tych danych odbywa się anonimowo.
    Google Analytics
    Akceptuję
    Odrzucam
    Niezbędne
    Niezbędne pliki cookies
    Te pliki cookie są konieczne do prawidłowego działania serwisu dlatego też nie można ich wyłączyć z tego poziomu, korzystanie z tych plików nie wiąże się z przetwarzaniem danych osobowych. W ustawieniach przeglądarki możliwe jest ich wyłączenie co może jednak zakłócić prawidłowe działanie serwisu.
    Akceptuję
    Odrzucam
    Zapamiętaj ustawienia